JEL-Leading Manufacturer of Clean Robot



Robot for Petri Dish/Microplate

Robot for Handling Petri Dish

Robot for handling petri dish

Usage Environment/Specifications


Product Profile

Product ModelRobot for handling petri dish
EnvironmentClean room atmosphere
ArmSingle arm
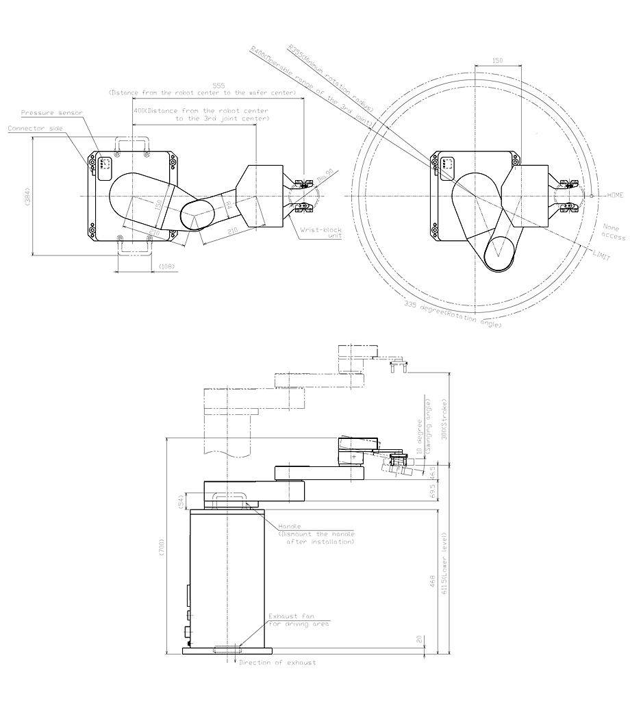
Operating Range555mm (Robot center to wafer center)
Vertical Stroke300mm

List of Product Model

Product Model & Vertical Stroke
GCR4210-300-AM 300mm


Product Video

  • The image and the video are of Robot for handling petri dish (GCR4210-300-AM)

Characteristics

  • Suitable for handling in sterile room, or clean environment used for medical and biotechnology applications.
  • Microplate handling is also available.
  • Tilt feature tilts the petri dish to aspirate the culture fluid.
  • Transferring parts can be installed in our robots. (The specifications below are based on horizontal and multi-joint type clean robot.)

Standard Specifications

Specifications of GCR4210-300-AM for handling petri dish.
Specifications of Robot
Robot Model GCR4210-300-AM
Carrying Object Petri dish (Glass) φ90mm x 21mm (*Other sizes or microplate is available.)
Petri Dish Holding By edge grip (Edge grip by driving pneumatic cylinder)
Robot Model Type Horizontal and multi-joint type Control Axis 4-axis
Motor Type AC servo motor
Operating Range 3rd Joint Center Rotation Angle (Theta-axis) Vertical Stroke (Z-axis)
400mm 335deg 300mm
Carrying Speed (Ave.) Arm (R-axis) Rotation Angle (Theta-axis) Vertical Stroke (Z-axis)
165mm/sec 165deg/sec 150mm/sec
Repeatability Within ±0.1mm
Cleanliness ISO Class 2 (at wafer transfer level when exhausting driving part)
Utility Air: For driving edge grip (0.15MPa or more); For swinging wrist-block (0.3MPa or more)
Mass Robot main body: Approximately 37kg
Specifications of Controller
Controller Model C5000S series
Interface RS232C and parallel photo I/O
Outline Drawing (Standard)
Robot for Handling Petri Dish


Product Lineup


Icon guide
  • ...Atmosphere
  • ...Vacuum
  • ...Waterproof
  • ...Thin wafer
  • ...CE marking
  • ...JEL's standard spec.
  • ...KCs marking